close

150622_syinterior_0.jpg 

 

 

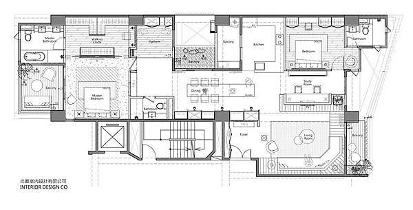
黑色向來予人時尚優雅的氣息,運用在空間中則低調而神秘,尚藝室內設計 分享的林口住家就充滿這種濃濃特色!喜歡個性工業風的屋主,希冀藉助設計師的洗練風格,為夫妻倆創造不一樣的生活空間。由於公共空間已大面積使用盤多磨地板,天花便以鐵網和木板做出格狀造型,壓低空間減少冰冷,並在寬闊客廳使用南方松架高出ㄇ字型區域,嵌入低調奢華的藍沙發後,頗有南洋渡假氛圍。原本餐廳後方有一根惱人的柱干擾,解決方法是讓它變成黑色釉亮面的滑門式隱藏收納櫃,搭配木層架,便利又有高格調。重視家庭用餐時光的屋主,不妨參考特製原木大餐桌,充滿古代歐洲歡愉的餐館風味,並且結合嵌入式電磁爐和紅酒櫃,享用美酒佳餚非常方便! 

 

 

150622_syinterior_1.jpg 

150622_syinterior_2.jpg 

150622_syinterior_3.jpg 

150622_syinterior_4.jpg 

150622_syinterior_5.jpg 

150622_syinterior_7.jpg 

150622_syinterior_8.jpg 

150622_syinterior_9.jpg 

150622_syinterior_11.jpg 

150622_syinterior_12.jpg 

BY   MK.

資料參考:

http://decomyplace.com/tw/newspost.php?id=3272

尚藝室內設計

創作者介紹
創作者 晶華公益 的頭像
晶華公益

晶華傢俱公益店

晶華公益 發表在 痞客邦 留言(0) 人氣()